Kulturhus har tradisjonelt hatt en sentral plass i Norge, som viktige møteplasser for mennesker i alle aldre og bakgrunner. Imidlertid har disse kultursentrene utviklet seg til store, komplekse strukturer. Hvordan kan slike omfattende offentlige plasser bidra til å skape en følelse av tilhørighet og identitet?
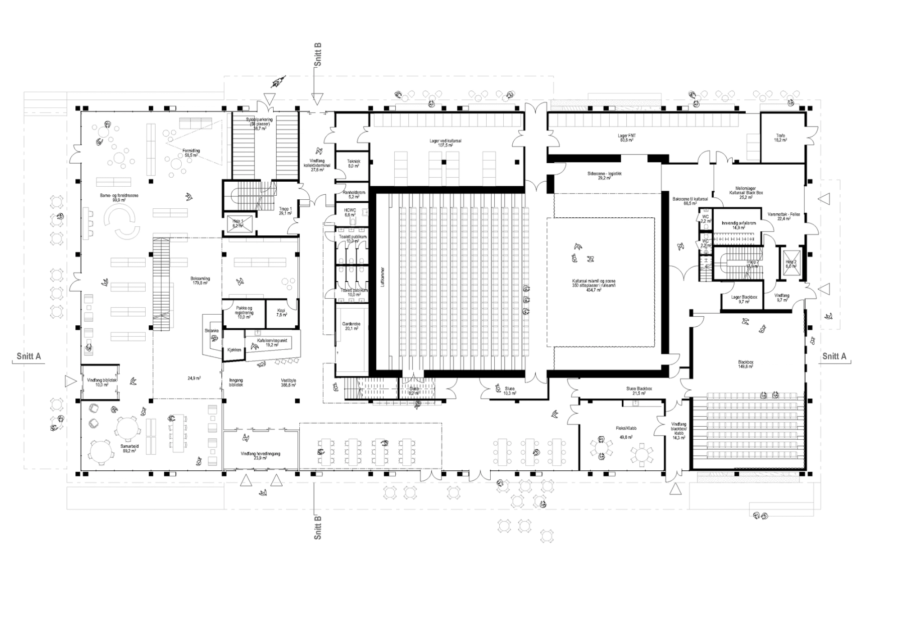
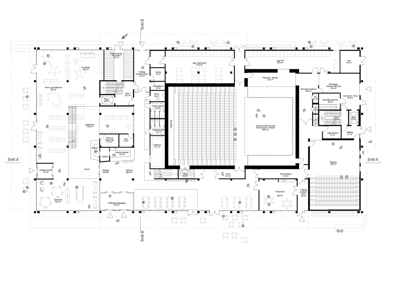
Det nye kulturhuset, torget og gangveiene, sammen med den kommende trikkeholdeplassen og bussterminalen, gir en mulighet til å omforme området til et dynamisk og livlig senter for aktiviteter hele året. Et kompakt og energieffektivt bygningsvolum er utgangspunktet, med fokus på effektiv bruk av materialer og store, åpne rom. Samarbeid med Local, Rambøll, og Brekke og Strand
 
 
 
 
 
 
 
 
 
